Attualità
Taurisano: ecco l’Ospedale di Comunità
Le prime immagini della struttura ed i servizi che ospiterà. Il sindaco: “Molto più di un semplice comprensorio medico”
di Lorenzo Zito
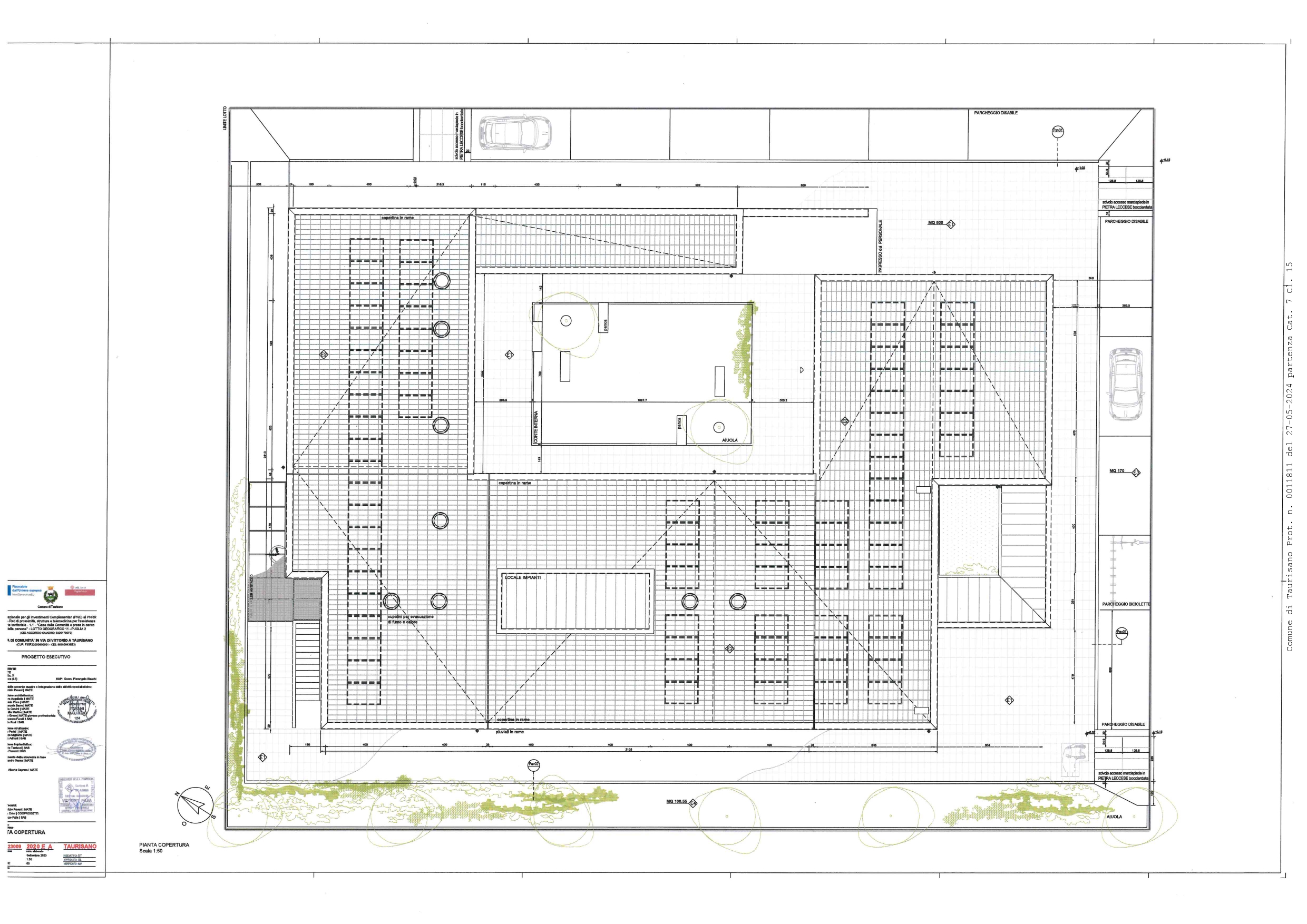
L’Ospedale di Comunità di Taurisano (tecnicamente “Casa della Comunità“) è pronto a prender forma. Il nuovo immobile che sorgerà nei pressi della chiesa Maria SS. Ausiliatrice, ad est – nordest del centro abitato in direzione Miggiano, affacciandosi su via Turati e su via Gramsci, sarà così come nelle planimetrie che qui pubblichiamo in esclusiva (a fine articolo il progetto completo).
Ospiterà una struttura di “sanità di prossimità”, destinata non solo ai taurisanesi ma anche ai cittadini del comprensorio, in particolar modo a quelli dei Comuni che non dispongono di servizi di questa natura.
Ad apparecchiare il terreno è stato il Comune di Taurisano, che ha intercettato i fondi necessari alla sua realizzazione, ottenendo che 2,3 milioni di euro del PNRR venissero destinati a questo progetto. La scadenza per la realizzazione della struttura era in principio la fine del 2025, ora prorogata a fine 2026.
Il progetto è portato avanti in partnership con l’Asl di Lecce, cui il Municipio taurisanese ha già consegnato una concessione in comodato d’uso gratuito di 99 anni per l’area interessata.
Il sindaco
“Siamo tra i pochi in provincia ad aver ottenuto questo tipo di finanziamento”, spiega il sindaco Luigi Guidano, che ha già in mente la creazione di questo servizio sul territorio da anni: “In una delle mie precedenti amministrazioni (è stato sindaco già dal 2001 al 2010, NdA), dopo lo scioglimento degli IPAB, mi trovai nelle condizioni di poter disporre di un bene che era stato gestito dalla parrocchia della Maria SS. Ausiliatrice e che era ritenuto proprietà comunale. Vi insediai il servizio di guardia medica, un consultorio ed un raggruppamento di cinque medici di base. All’epoca, raggiunsi anche l’intesa con l’Asl per la nascita di un’UTAP (così venivano chiamate una volta le Unità Territoriali di Assistenza Primaria). Una struttura che permettesse di disporre di qualcosa in più dei medici di base, ospitando periodicamente specialisti per malattie croniche ed altre patologie che interessano soprattutto la fascia della terza età, in modo tale da rendere la trasferta ospedaliera una extrema ratio per i cittadini di Taurisano. A quell’idea non fu dato seguito, tant’è che in quella struttura negli anni sono rimasti solo gli ambulatori medici. Per questo motivo per sono tornato con determinazione sul tema, riproponendo il mio progetto in questa mia nuova esperienza da sindaco. I fondi del PNRR ci daranno l’opportunità di ricalcare quella stessa tipologia di servizio con il nascituro Ospedale di Comunità”.
Non è tuttavia ancora dettagliato quali prestazioni verranno esattamente erogate: “Il Comune si è occupato del mettere in campo tutti gli strumenti necessari alla realizzazione dell’opera. La palla passerà poi all’Asl, che deve ancora formalizzare nel dettaglio il servizio che andrà a proporre, per il momento definito solo per grandi linee (NdA, alla direzione dell’Asl di Lecce abbiamo chiesto un approfondimento in merito: la risposta nel paragrafo che segue). La volontà è quella di garantire un servizio intermedio tra il domicilio e il ricovero ospedaliero. Rivolto a pazienti che, a seguito di un episodio di acuzie minore o per la riacutizzazione di patologie croniche, necessitano di interventi sanitari a bassa intensità clinica, potenzialmente erogabili a domicilio, ma che hanno bisogno quella assistenza e sorveglianza sanitaria infermieristica continuativa, anche notturna, non erogabile a casa. Mi aspetto che possano rendere questa struttura una nuova casa della salute a tutti gli effetti, ben oltre un semplice comprensorio per medici di base, quale potrebbe essere la destinazione in prima battuta”, commenta il sindaco Guidano, “anche se mi preoccupano le correnti verso cui sta muovendo la politica sanitaria nazionale, sempre più orientata verso la privatizzazione. Non vorrei che questo potesse influenzare anche le scelte che interesseranno quest’opera. Spero di essere smentito…”.
Dal Municipio di Taurisano seguiranno con attenzione quanto accadrà, come accaduto sin qui nel processo di progettazione della struttura, curato dall’Asl “di concerto con il Comune, in un rapporto che ha visto un costante scambio di pareri tra le parti”, come sottolinea il primo cittadino che, in proposito, aggiunge: “Oltre a rispettare tutti i dovuti crismi in materia sanitaria e di opere pubbliche, la struttura avrà anche il valore aggiunto dell’autosufficienza energetica, grazie ad una serie di impianti che la renderanno autonoma”.
Parola all’Asl
Dall’Asl di Lecce la conferma circa l’affidamento in comodato d’uso dell’area citata: “L’Amministrazione Comunale di Taurisano ha da subito espresso la volontà di cedere in uso alla ASL Lecce un terreno situato in Via G. Di Vittorio (identificato in Catasto al foglio 12 p.lle 3880, 3882 e 3884, della superficie complessiva pari a mq 1683.00). Con Deliberazione del Consiglio Comunale n. 42 del 22.08.2022 è stato approvato lo Schema del “Protocollo d’Intesa per la costituzione a titolo gratuito del diritto di superficie in favore dell’ASL Lecce” per un periodo di 99 anni sul terreno ubicato di via G. Di Vittorio, e contestualmente è stato autorizzato il Sindaco alla sottoscrizione del protocollo ai fini dell’assunzione delle parti a stipulare un atto pubblico di costituzione in favore dell’Azienda del diritto di superficie. Il 30/03/2023 è stato firmato il contratto per l’esecuzione dei tre livelli progettuali (PFTE, Progetto Definitivo e Progetto Esecutivo) con la soc. coop. MATE. La stessa MATE ha proceduto ad inviare i progetti nei tempi stabiliti dal contratto. Il 27/12/2023 è stato firmato il contratto specifico per i lavori con la Ditta Matarrese Bari. Il 13/03/2024 è stato rilasciato il titolo edilizio abilitativo da parte del SUAP del Comune di Taurisano. Trattandosi di nuova costruzione, sono previste opere strutturali per le quali è necessario individuare il collaudatore statico. Entro la prossima settimana un professionista sarà incaricato formalmente e quindi si potrà dare inizio ai lavori previsti”.
Quali servizi
Rispetto ai servizi previsti, dall’Asl spiegano che “a tutti i progettisti era stato ordinato di prevedere, all’interno di ogni Casa di Comunità, innanzitutto i servizi obbligatori previsti nel DM 77/2022 ed eventualmente ai servizi raccomandati e facoltativi“. Rifacendosi pertanto al decreto citato, i servizi obbligatori che è lecito attendersi saranno i seguenti:
- Servizi di cure primarie erogati attraverso équipe
multiprofessionali (MMG, PLS, Specialisti
ambulatoriali interni (SAI), IFoC, ecc.) - Punto Unico di Accesso (PUA) sanitario
- Servizio di assistenza domiciliare
- Servizi di specialistica ambulatoriale per le patologie ad
elevata prevalenza (cardiologia, pneumologia,
diabetologia, ecc.) - Servizi infermieristici, (sia in termini di prevenzione
collettiva e promozione della salute pubblica, inclusa
l’attività dell’Infermiere di Famiglia o Comunità (IFeC),
ambulatori infermieristici per la gestione integrata della
cronicità e per la risposta ai bisogni occasionali) - Sistema integrato di prenotazione collegato al CUP
aziendale - Integrazione con i Servizi Sociali
- Partecipazione della Comunità e valorizzazione della
co-produzione, attraverso le associazioni di cittadini e
volontariato - Collegamento con la Casa della Comunità hub di
riferimento - Presenza medica (almeno 12h al giorno per 6 giorni su 7)
- Presenza infermieristica (almeno 12h al giorno per 6 giorni su 7)
Da definire invece la presenza di ulteriori servizi, non obbligatori per decreto, ma che potrebbero comunque essere previsti, quali:
- Servizi diagnostici di base (finalizzati al monitoraggio
della cronicità con strumentazione diagnostica di base
(ecografo, elettrocardiografo, retinografo, oct,
spirometro, ecc.) anche attraverso strumenti di
telemedicina (es. telerefertazione, ecc.) - Continuità assistenziale
- Punto prelievi
- Attività Consultoriali e attività rivolta ai minori
- Interventi di salute pubblica (incluse le vaccinazioni per
la fascia 0-18) - Programmi di screening
- Servizi per la salute mentale, le dipendenze patologiche
e la neuropsichiatria infantile e dell’adolescenza - Medicina dello sport
La struttura: le tavole
Il prossimo step è la consegna dei lavori, già andati a bando, all’impresa aggiudicataria, la “Matarrese” di Bari. Come prassi con i fondi del PNRR, i tempi per ultimare l’opera non sono lunghi: salvo ulteriori proroghe, resta appena un anno e mezzo per la sua realizzazione. Ecco le tavole del progetto.
Attualità
IA e Data Science: a Scuola di Innovazione
I.T.E. De Viti De Marco, a Casarano un percorso innovativo che unisce tecnologia, economia e analisi dei dati per preparare gli studenti alle professioni più richieste del mercato digitale
In un mondo sempre più guidato dai dati, dove aziende, banche, sanità e pubblica amministrazione basano le proprie decisioni su analisi digitali, nasce un percorso scolastico innovativo capace di formare le competenze più richieste dal mercato del lavoro: Intelligenza Artificiale applicata alla Data Science.
L’Istituto Tecnico Economico “A. De Viti De Marco” lancia un corso quadriennale all’avanguardia che combina informatica, economia e tecnologia, offrendo agli studenti una preparazione concreta per affrontare le sfide della trasformazione digitale.
UN PERCORSO QUADRIENNALE PER COSTRUIRE IL FUTURO
Il progetto si inserisce nel modello formativo quadriennale: quattro anni di scuola superiore seguiti, per chi lo desidera, direttamente dall’università o da due anni di alta specializzazione presso l’ITS Digital Academy.
Un’opportunità unica che permette agli studenti di: accedere a tutte le facoltà universitarie; proseguire la formazione con percorsi altamente professionalizzanti; entrare prima nel mondo del lavoro con competenze specialistiche.
Una scelta strategica per chi vuole essere protagonista dell’economia digitale.
DALLA PROGRAMMAZIONE ALL’INTELLIGENZA ARTIFICIALE
Il percorso è strutturato in modo progressivo e pratico.
Il linguaggio del digitale, Primo anno.
Gli studenti apprendono le basi dell’informatica aziendale, sviluppano il pensiero computazionale e imparano a programmare in C++.
Grande attenzione è dedicata alla cibersecuryty informatica e alla privacy.
Programmazione e impresa, Secondo anno.
Qui la tecnologia incontra il mondo aziendale: creazione di software per le imprese, gestione di dati economici reali, sviluppo di siti web e applicazioni pratiche.
Dati e Business Intelligence, Terzo anno.
Si entra nel cuore dell’analisi dei dati: database, dashboard, grafici e report per interpretare l’andamento aziendale.
Gli studenti lavorano su progetti reali con imprese locali.
Intelligenza Artificiale e futuro, Quarto anno.
È l’anno della specializzazione: modelli predittivi, analisi avanzata dei dati, applicazioni di Intelligenza Artificiale per supportare le decisioni aziendali.
Si studiano anche etica, cybersecurity e impatto sociale delle nuove tecnologie.
SCUOLA-LAVORO: BINOMIO VINCENTE
Il percorso è fortemente collegato al mondo del lavoro grazie a laboratori pratici, progetti con aziende, formazione scuola-lavoro qualificante, docenti ed esperti esterni e collaborazione diretta con ITS Digital Academy.
L’obiettivo è formare una nuova figura professionale: l’Artificial Intelligence and Data Science Specialist, capace di sviluppare soluzioni innovative per le imprese.
OPPORTUNITÀ CONCRETE DI CARRIERA
Al termine dei quattro anni gli studenti potranno: iscriversi all’università, continuare con i due anni di specializzazione ITS. ed entrare subito nel mondo del lavoro.
Un percorso che risponde alle esigenze reali del mercato e prepara a professioni richieste in ambito informatico, economico e tecnologico.
UNA SCELTA PER CHI GUARDA AVANTI
“Non solo teoria, ma competenze reali”: questo è lo spirito del corso.
In un’epoca in cui i dati sono il nuovo petrolio, saperli analizzare e utilizzare con l’Intelligenza Artificiale rappresenta un enorme vantaggio competitivo.
L’ITE “A. De Viti De Marco” invita studenti e famiglie a partecipare agli Open Day per scoprire da vicino il percorso formativo e le opportunità offerte.
Info e contatti: 0833 504014
Sito: itedevitidemarco.edu.it
Attualità
Campi elettromagnetici, Matino è ok
Eseguito monitoraggio degli impianti di radiotelecomunicazione per la telefonia cellulare presenti sul territorio comunale. ARPA Puglia esclude situazioni di rischio per la popolazione
📍 Segui il Gallo
Live News su WhatsApp 👉 clicca qui
A seguito della richiesta di monitoraggio ambientale avanzata dall’amministrazione comunale e della successiva interlocuzione con ARPA Puglia, sono state effettuate specifiche attività di controllo sui campi elettromagnetici generati dagli impianti di radiotelecomunicazione per la telefonia cellulare presenti sul territorio comunale.
In particolare, come comunicato da ARPA Puglia, nelle giornate del 25 novembre e del 2 dicembre 2025 il personale tecnico dell’Unità Operativa competente ha eseguito misurazioni dei campi elettromagnetici presso siti ritenuti di interesse radioprotezionistico in relazione agli impianti segnalati.
Gli esiti delle misurazioni hanno evidenziato valori inferiori ai limiti stabiliti dalla normativa vigente, escludendo situazioni di rischio per la popolazione.
I rapporti di misura costituiranno parte integrante dei certificati di conformità di postattivazione, che saranno trasmessi al Comune di Matino e pubblicati sul sito istituzionale di ARPA Puglia, secondo le modalità previste al link sul sito di Arpa Puglia.
«L’amministrazione comunale», spiega il sindaco Giorgio Salvatore Toma, «ha ritenuto necessario attivare le competenti strutture tecniche regionali per garantire un controllo puntuale e rigoroso sugli impianti di telefonia presenti sul territorio. La salvaguardia della salute dei cittadini e la tutela dell’ambiente rappresentano principi fondamentali dell’azione amministrativa. I risultati comunicati da ARPA Puglia confermano la conformità degli impianti ai limiti di legge e forniscono un quadro rassicurante per la comunità. Resta ferma la volontà dell’amministrazione di proseguire in un’attività di vigilanza costante, improntata alla massima trasparenza e collaborazione con gli enti preposti».
Il sindaco Toma, infine, ribadisce «l’impegno dell’amministrazione comunale a garantire informazione, controllo e trasparenza, restando a disposizione dei cittadini per ogni ulteriore chiarimento o approfondimento sul tema».
Attualità
Capitale Italiana del Mare 2026, c’è anche Santa Cesarea
“Il mare che cura, protegge e accoglie”. Candidatura da un milione di euro, sostenuta dalla Provincia e da un’ampia rete di Comuni e Istituzioni pugliesi, che punta su eventi culturali, tutela ambientale, benessere e accoglienza
📍 Segui il Gallo
Live News su WhatsApp 👉 clicca qui
Il Comune di Santa Cesarea Terme ha ufficialmente presentato la propria candidatura al titolo di Capitale Italiana del Mare 2026, promosso dalla Presidenza del Consiglio dei ministri – Dipartimento per le Politiche del Mare, con il progetto dal titolo “Il mare che cura, protegge e accoglie”.
Il riconoscimento prevede l’assegnazione di un finanziamento di un milione di euro destinato alla realizzazione del programma nell’anno di riferimento.
Una competizione nazionale di alto profilo, che vede Santa Cesarea Terme confrontarsi con località di primo piano del panorama marittimo italiano, tra cui città del calibro di Genova, Taranto, Riccione, Messina e altri importanti centri costieri. Una sfida ambiziosa che rende ancora più significativo il forte sostegno espresso dal territorio salentino.
La proposta nasce da una visione chiara e radicata nell’identità locale, che interpreta il mare non solo come elemento paesaggistico, ma come spazio di benessere, cultura, tutela ambientale e accoglienza.
Il programma di attività, previsto tra marzo e dicembre 2026, si sviluppa lungo tutto l’anno con un calendario diffuso di iniziative capaci di coinvolgere residenti e visitatori anche oltre la stagione estiva.
Il progetto prevede rassegne di cinema e teatro sul mare, eventi culturali e performance all’aperto, visite guidate tematiche e multilingua dedicate alle grotte marine, alle torri costiere, al sistema termale e alle frazioni, oltre a passeggiate ecologiche, giornate di volontariato ambientale e attività di sensibilizzazione lungo la costa.
Accanto agli eventi, sono previste azioni per il potenziamento dei servizi di informazione e accoglienza turistica, anche attraverso strumenti digitali dedicati, l’installazione di totem informativi multilingua, interventi per migliorare accessibilità e fruizione inclusiva dei luoghi e la sperimentazione di soluzioni di mobilità sostenibile nei periodi di maggiore afflusso.
Elemento distintivo della candidatura è il forte legame tra mare e benessere, che trova nelle Terme di Santa Cesarea un riferimento identitario unico nel panorama nazionale, affiancato da una particolare attenzione alla tutela degli ecosistemi costieri e marini, anche grazie alla collaborazione con Plastic Free e ad altre realtà impegnate nella sostenibilità ambientale.
La candidatura assume una chiara dimensione territoriale e sovracomunale.
È sostenuta da: Provincia di Lecce, Aeroporti di Puglia, Terme di Santa Cesarea, l’IISS Polo Tecnico Mediterraneo “A. Moro” di Santa Cesara Terme, il CNA di Lecce, il GAL Capo di Leuca, Plastic Free Onlus, il Parco Naturale Regionale Costa Otranto – Santa Maria di Leuca e Bosco di Tricase, e numerosi Comuni del Salento: Aradeo, Carmiano, Carpignano Salentino, Casarano, Castrignano del Capo, Cavallino, Galatina, Leverano, Maglie, Martano, Melpignano, Minervino di Lecce, Muro Leccese, Novoli, Ortelle, Parabita, Poggiardo, Racale, San Cesario di Lecce, San Donato di Lecce, San Pietro in Lama, Sogliano Cavour, Spongano e Uggiano La Chiesa.
Accanto alle istituzioni pubbliche, sostengono la candidatura anche tantissimi enti del terzo settore, organismi di sviluppo locale, istituzioni formative e realtà imprenditoriali del territorio.
«Abbiamo scelto di candidarci con un progetto concreto e riconoscibile», dichiara il sindaco di Santa Cesarea Terme, Pasquale Bleve, «capace di mettere in relazione mare, cultura, ambiente e benessere. Il sostegno così ampio che stiamo ricevendo dimostra che questa candidatura non riguarda solo Santa Cesarea Terme, ma rappresenta un’opportunità reale per tutto il territorio salentino, chiamato a misurarsi in una sfida nazionale di grande livello».
In attesa della valutazione finale, con il verdetto atteso per febbraio, la candidatura di Santa Cesarea Terme rappresenta già un risultato significativo: aver costruito una rete ampia e coesa attorno a un progetto che guarda al mare non come risorsa da consumare, ma come patrimonio da valorizzare nel tempo, con ricadute concrete per comunità e territori.
-
Alessano2 settimane faMaserati contro Renault sulla statale: perde la vita professore di Alessano
-
Cronaca2 settimane faLite a Tricase: uomo ferito al volto
-
Cronaca3 settimane fa59enne perde la vita in un incidente dopo il turno di lavoro
-
Alessano1 settimana faScontro mortale tra Alessano e Lucugnano, positivo all’alcoltest conducente della Maserati
-
Cronaca2 settimane faVigilante salentino morto per il freddo su cantiere Olimpiadi a Cortina
-
Cronaca1 settimana faI NAS sequestrano oltre 9 quintali di alimenti
-
Corsano3 settimane faTiggiano, latitante dal 2017, torna per il Natale e viene arrestato
-
Campi Salentina3 settimane fa24enne perde la vita in un tragico incidente






